ABX Normandie bordó

ABX Normandie bordó - kachlová kamna

Garance českého původu zboží
ABX Normandie bordó
Dárek
DÁREK - podpalovač PODPAL 22 ks
Výrobce
Kód produktu 07-ABX30626
Dostupnost zboží ve výrobě
U Vás předběžně 19.11.2026
Záruční lhůta 24 měsíců
Hmotnost 181.0 kg
Doprava zdarma

Doprava zdarma Dárek

62 067 Kč
Dnes nakupte jen za
60 521 Kčvčetně DPH
Potřebujete poradit s objednávkou?

ABX Normandie bordó


Kachlová rohová kamna ABX Normandie jsou vyrobená z kvalitní oceli s kachlovým obložením. Velké obloukové prosklení umocní pohled do plápolajícího ohně. Přiváděný vzduch napomáhá dokonalému spalování a zajišťuje extrémně čisté spaliny, které minimálně znečišťují životní prostředí. Výroba krbových kamen ABX Normandie je založená na kvalitním provedení. Kamna splňují nejpřísnější německé a rakouské normy.

Pro použití etxterního přívodu vzduchu je nutné objednat hrdlo pro připojení.

ABX Normandie bordó
Výhody pro Vás:
Provedení: kachle California gold
Rozsah výkonu: 3,5 - 9 kW
Jmenovitý tepelný výkon 7 kW
Vývod kouřovodu: zadní
Průměr kouřovodu: 150 mm
Tah komínu (minimální): 12 Pa
Palivo: dřevo, dřevěné brikety, hnědouhelné brikety
Délka polen: 39 cm
Vyhřívaný prostor: 70-180 m3
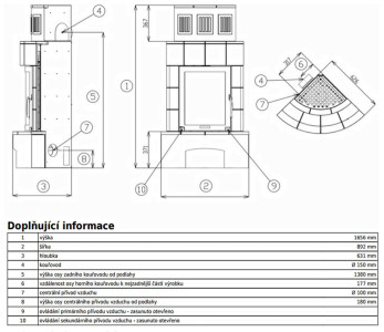
Rozměry (v x š x h):
1656 x 892 x 631 mm
Hmotnost: 181 kg
Nepřetržitý provoz: Ano
Extérní přívod vzduchu: Ano - nutno dokoupit hrdlo
Spotřeba paliva:

2 kg / h (dřevo)

ABX Normandie bordó 

Příslušenství ke krbovým kamnům zde.
Odkouření ke krbovým kamnům zde.

Návrat na hlavní stranu: GAS.CZ

Produkt nemá žádné parametry
Žádné soubory ke stažení.
Litujeme, ale v této kategorii nejsou žádné produkty...